Capannone in vendita

Parabiago, Via Enrico Butti
Informazioni in agenzia
5 locali 5 locali
575 Mq 575 Mq
3 bagni 3 bagni

Capannone in vendita

Parabiago, Via Enrico Butti

Descrizione annuncio

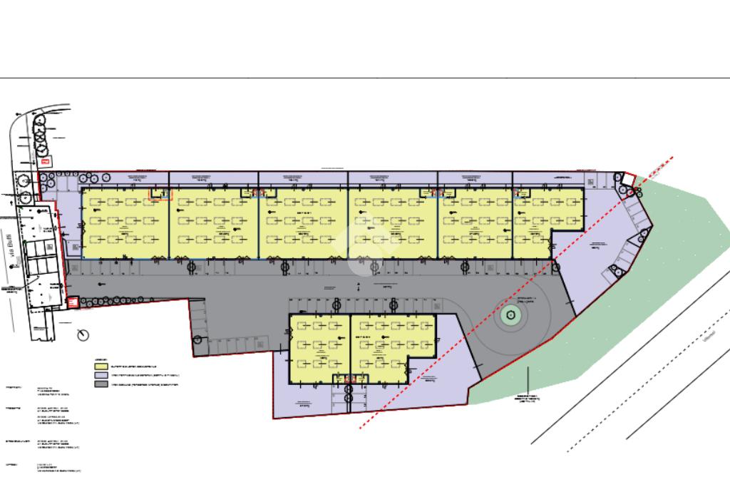
Ubicato nel comune di Parabiago disponiamo di un cantiere industriale in fase di realizzazione dove è possibile acquistare una porzione fronte strada composta da una zona produttiva di 675 mq più palazzina uffici disposta su due piani per un totale di 260 mq e area esterna di proprietà.

La zona produttiva ha una altezza utile di 8 mt, ha la predisposizione per il carro ponte, il corpo servizi a norma per disabili e la predisposizione per gli impianti; la palazzina uffici è posizionata fronte strada ed è un corpo a parte dal capannone.

La proprietà fa parte di un complesso dotato di un ampia area esterna comoda per la movimentazione dei mezzi pesanti e ideale per il parcheggio dei mezzi privati in quanto dotata di 76 posti auto.

L'immobile è ideale per attività produttive e di assemblaggio ed essendo in fase di realizzazione si può edificare in base alle proprie esigenze.

Possibilità rent to buy.

I nostri servizi per chi cerca in acquisto o in affitto un immobile per l’impresa:

Analisi del fabbisogno

Inserimento della richiesta immobiliare nella Banca Dati

Ricerca dell’immobile sul territorio

Selezione e presentazione delle offerte più in linea con la richiesta del cliente

Avvio alla negoziazione e relativa assistenza fino alla stesura del contratto

Individuazione di soluzioni di finanziamento

Ricerca Immobile

I nostri per chi offre in vendita o in affitto un immobile per l’impresa:

Analisi e valutazione del bene immobile

Selezione dei potenziali clienti e conduzione della trattativa con la completa assistenza tecnico contrattuale

Aggiornamento puntuale sull’andamento della gestione dell’incarico

Promozione dell’immobile attraverso testate specializzate di settore, periodico tecnocasa e riviste digitali

Promozione dell’immobile su internet attraverso il portale del gruppo e il nostro portale, la nostra fan page facebook, la nostra pagina instagram e il nostro canale you tube

Applicazione mobile

Mostra tutto

Nelle vicinanze

Trasporto pubblico Trasporto pubblico
Parabiago
Parabiago
950 m
Trasporto pubblico
1,1 Km
Via 4 novembre angolo via Giuseppe Garibaldi
Via 4 novembre angolo via Giuseppe Garibaldi
2,9 Km
stazione di Canegrate
stazione di Canegrate
2,9 Km
Ricariche auto elettriche Ricariche auto elettriche
COOP Lombardia - Parabiago
920 m
Scuole Scuole
Scuola Primaria Alessandro Manzoni
1,5 Km
Liceo Claudio Cavalleri
1,8 Km
Scuole
2,3 Km
Scuola Primaria "Aldo Moro"
2,5 Km
Scuola Elementare San Lorenzo
2,9 Km
Farmacia Farmacia
Farmacia
1,0 Km
Farmacia San Michele
1,4 Km
Parafarmacia Frel
1,5 Km
Farmacia Muzio
1,7 Km
Farmacia Simonatti
2,7 Km
Supermercati Supermercati
EuroSpin
420 m
NaturaSì
430 m
Supermercati
520 m
Coop
870 m
Punto Simply
1,2 Km
Negozi Negozi
L'Ape Fornarina
1,3 Km
Intimo e calze
1,3 Km
Alimentari Ghisi
1,4 Km
Negozi
1,4 Km
Max Mara
1,4 Km
Bar Bar
Alen Bar
1,3 Km
Bar
1,3 Km
Mr. Eye
1,7 Km
Daniel's Video Bar
1,8 Km
Il Vercesi
2,8 Km
Ristoranti Ristoranti
Il Pioppeto
1,1 Km
La Casa dei Golosi
1,1 Km
Sant'Antonio
1,3 Km
Pizzeria Emy
1,4 Km
MagiClem
1,4 Km
Mostra tutto

Caratteristiche

Rif.:
60632102
Piano:
Terra di 1
Totale piani:
1
Posti auto:
5
Condizionamento:
Autonomo
Ascensore:
No
Mostra tutto
Prezzo Prezzo
Informazioni in agenzia
Spese annue Spese annue
€ 0
Proponi il tuo prezzoProponi il tuo prezzo

Altre caratteristiche

Descrizione dei locali
Bagno Con Finestra

Classe Energetica

Questo immobile è esente da classe energetica
Anno di costruzione:
2027
Riscaldamento:
Autonomo
Tipo impianto:
A radiatori
Tipo alimentazione:
Metano

Ti interessa visionare l'immobile?

Fissa un appuntamento  Fissa un appuntamento

Richiedi informazioni

Clicca su Leggi per aprire l'informativa
* Questi campi sono obbligatori
Affiliato
Studio Industria Sas
Viale Lombardia, 75 20015 Parabiago (MI)

Il nostro staff


  • Marco Bandera
    Affiliato

  • Lidia Eugenia Cavaliere
    Coordinatrice

  • Noemi Pazzaglia
    Collaboratrice
Viale Lombardia, 75 20015 Parabiago (MI)
Zona: Parabiago e Asse Sempione
Mostra su mappa
Orari: dal lunedì al venerdì dalle 09.00 alle 12.30 e dalle 14.30 alle 19.00; il sabato dalle 09.00 alle 12.30
Affiliato
Studio Industria Sas
Viale Lombardia, 75 20015 Parabiago (MI)

2026 Tecnocasa Franchising S.p.A. - P. IVA 08365160152 - Via Monte Bianco 60/A 20089 Rozzano (MI). Ogni agenzia ha un proprio titolare ed è autonoma. Privacy policy | Policy utilizzo | Cookie policy