Capannone in affitto

San Vittore Olona, Via puccini
€ 5.000 / mese
4 locali 4 locali
1500 Mq 1500 Mq
3 bagni 3 bagni

Capannone in affitto

San Vittore Olona, Via puccini

Descrizione annuncio

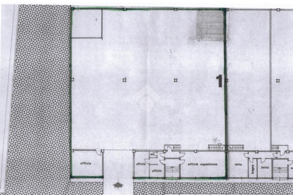
Nel comune di San Vittore Olona proponiamo in locazione un immobile produttivo con superficie totale di 1500 mq con altezza utile di 5 mt.

L'immobile offre spazi versatili suddivisi in 1300 mq. di zona produttiva, 100 mq. di uffici e 100 mq. di spogliatoi e servizi e area esterna condominiale che agevola il carico e scarico dei mezzi.

La posizione strategica nelle vicinanze del Sempione rende questo capannone particolarmente interessante per chi cerca una soluzione ben collegata e facilmente raggiungibile sia dal comune di Legnano e sia dal comune di Parabiago.

Ideale per attività di assemblaggio e deposito; disponibilità immediata.

I nostri servizi per chi cerca in acquisto o in affitto un immobile per l’impresa:

Analisi del fabbisogno

Inserimento della richiesta immobiliare nella Banca Dati

Ricerca dell’immobile sul territorio

Selezione e presentazione delle offerte più in linea con la richiesta del cliente

Avvio alla negoziazione e relativa assistenza fino alla stesura del contratto

Individuazione di soluzioni di finanziamento

Ricerca Immobile

I nostri per chi offre in vendita o in affitto un immobile per l’impresa:

Analisi e valutazione del bene immobile

Selezione dei potenziali clienti e conduzione della trattativa con la completa assistenza tecnico contrattuale

Aggiornamento puntuale sull’andamento della gestione dell’incarico

Promozione dell’immobile attraverso testate specializzate di settore, periodico tecnocasa e riviste digitali

Promozione dell’immobile su internet attraverso il portale del gruppo e il nostro portale, la nostra fan page facebook, la nostra pagina instagram e il nostro canale you tube

Applicazione mobile

Mostra tutto

Nelle vicinanze

Trasporto pubblico Trasporto pubblico
Parabiago
Parabiago
2,9 Km
Trasporto pubblico
570 m
San Lorenzo
San Lorenzo
1,1 Km
stazione di Canegrate
stazione di Canegrate
2,4 Km
Ricariche auto elettriche Ricariche auto elettriche
Tigros Canegrate
2,3 Km
Scuole Scuole
Scuola Media San Lorenzo
990 m
Scuola Primaria Madre Gertrude Comensoli
1,1 Km
Scuola Elementare San Lorenzo
1,4 Km
Scuola Primaria Giosuè Carducci
1,4 Km
Scuola secondaria di primo grado "Giovanni Paolo II"
1,5 Km
Farmacia Farmacia
Farmacia dei Cinque Mulini
540 m
Farmacia
1,3 Km
San Lorenzo
1,4 Km
Farmacia San Bartolomeo
1,9 Km
Farmacia Villani
1,9 Km
Ospedali Ospedali
Ospedali
1,9 Km
Pronto Soccorso Ospedale Civile Di Legnano
2,6 Km
Ospedale vecchio di Legnano
2,7 Km
Supermercati Supermercati
Carrefour
330 m
Coop
1,9 Km
Pellicano
2,0 Km
Tigros
2,3 Km
Lidl
2,3 Km
Negozi Negozi
Il Pasticcione
1,2 Km
Negozi
1,9 Km
Gabel
2,1 Km
Max Moda
2,1 Km
Mocchetti
2,1 Km
Bar Bar
Empyre
830 m
Bar
1,2 Km
Bar Simona
1,9 Km
Mar. Si. Bar
1,9 Km
Jacarè
1,9 Km
Ristoranti Ristoranti
Wok International X
360 m
La fornace
580 m
The Birra
790 m
Tourlé
1,2 Km
Padre Pio 2
1,3 Km
Mostra tutto

Caratteristiche

Rif.:
61137557
Piano:
Terra di 1
Totale piani:
1
Posti auto:
5
Condizionamento:
Autonomo
Ascensore:
No
Mostra tutto
Prezzo Prezzo
€ 5.000 / mese
Spese annue Spese annue
€ 600

Altre caratteristiche

Descrizione dei locali
Bagno Con Finestra

Classe Energetica

Questo immobile è esente da classe energetica
Anno di costruzione:
1980
Riscaldamento:
Autonomo
Tipo impianto:
A radiatori
Tipo alimentazione:
Metano

Ti interessa visionare l'immobile?

Fissa un appuntamento  Fissa un appuntamento

Richiedi informazioni

Clicca su Leggi per aprire l'informativa
* Questi campi sono obbligatori
Affiliato
Studio Industria Sas
Viale Lombardia, 75 20015 Parabiago (MI)

Il nostro staff


  • Marco Bandera
    Affiliato

  • Lidia Eugenia Cavaliere
    Coordinatrice

  • Noemi Pazzaglia
    Collaboratrice
Viale Lombardia, 75 20015 Parabiago (MI)
Zona: Parabiago e Asse Sempione
Mostra su mappa
Orari: dal lunedì al venerdì dalle 09.00 alle 12.30 e dalle 14.30 alle 19.00; il sabato dalle 09.00 alle 12.30
Affiliato
Studio Industria Sas
Viale Lombardia, 75 20015 Parabiago (MI)

2026 Tecnocasa Franchising S.p.A. - P. IVA 08365160152 - Via Monte Bianco 60/A 20089 Rozzano (MI). Ogni agenzia ha un proprio titolare ed è autonoma. Privacy policy | Policy utilizzo | Cookie policy